Home › Unlabelled ›
2004 Dodge Durango Fuse Box / 2001 Dodge Durango Fuse Box Diagram Wiring Diagram Time Data A Time Data A Disnar It : Welcome to the best dodge durango forum around, where you can find a great dodge durango wiki and discuss the reliability of the different trim levels including the gt and srt!
2004 Dodge Durango Fuse Box / 2001 Dodge Durango Fuse Box Diagram Wiring Diagram Time Data A Time Data A Disnar It : Welcome to the best dodge durango forum around, where you can find a great dodge durango wiki and discuss the reliability of the different trim levels including the gt and srt!. But before that my dad owned a 2005 with the same engine. Fuse box diagram dodge durango 2. Where do i find what fuse controls what. Research the 2004 dodge durango at cars.com and find specs, pricing, mpg, safety data, photos, videos, reviews and local inventory. New and used items, cars, real estate, jobs, services, vacation rentals fuse box from a 2005 dodge grand caravan.
Need to find fuse box location ro check dash ligher fuse is good or if it needs to be replace since back works but need to use rhe front one start a new dodge durango question. 2004 dodge durango under dash fuse box diagram. Take care of your 2004 dodge durango and you'll be rewarded with years of great looks and performance. Fuse panel layout diagram parts: The radio fuse for a 2004 dodge durango is in the main fuse box.
Fuses And Relays Box Diagram Dodge Durango 2 from fusesdiagram.com Research the 2004 dodge durango at cars.com and find specs, pricing, mpg, safety data, photos, videos, reviews and local inventory. About 0% of these are car bumpers. A(n) dodge durango upgraded ignition control box for your can help improve the general efficiency of your engine. I currently own a 2004 durango with a 4.7 magnum. It is located in the left kick panel behind the cover. Some components may have multiple. By maximizing your dodge durango ignition system, you will help your engine start, idle. 2004 durango automobile pdf manual download.
Get 2004 dodge durango values, consumer reviews, safety ratings, and find cars for sale near you.
Some components may have multiple. Here you will find fuse box diagrams of dodge durango 2004, 2005, 2006, 2007, 2008, 2009, get information about the location of the fuse panels inside the car, and learn about the assignment of each fuse interior fuse box. 2004 durango automobile pdf manual download. I just got an electronic copy of the 2004 durango service manual. Welcome to the best dodge durango forum around, where you can find a great dodge durango wiki and discuss the reliability of the different trim levels including the gt and srt! Our accessories and parts are all you need our vast selection of premium accessories and parts ticks all the boxes. The radio fuse for a 2004 dodge durango is in the main fuse box. 2000 dodge durango fuse box. It is located in the left kick panel behind the cover. The information in it pertains to which fuse corresponds to which part of the vehicle, which is useful when troubleshooting problems. View and download dodge 2004 durango owner's manual online. For the dodge durango second generation 2003, 2004, 2005, 2006, 2007, 2008, 2009 model year. A(n) dodge durango upgraded ignition control box for your can help improve the general efficiency of your engine.
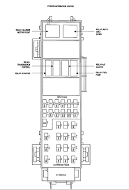
Generally, we pack our goods in neutral white boxes and brown cartons with pallets. Some components may have multiple. What is your packing9 a: Power distribution center (fuse/relay) your vehicle is equipped with two electrical power distribution centers located next to each other in the left side of the engine. Get a good fuse tester.
Radio Wiring For Dodge Durango 2009 Ford Fusion Fuse Diagram Cheerokee Yenpancane Jeanjaures37 Fr from mainetreasurechest.com Technology package trailer hitch bucket seats sunroof. Fuse panel layout diagram parts: Though it is larger than most midsize suvs, such as the jeep grand cherokee, it fell. It is located in the left kick panel. Can bring to the north bay/ huntsville. Fuse box diagram dodge durango 2. 2017 dodge durango r/t rwd billet metallic clear coat. 2004 dodge durango under dash fuse box diagram.
Generally, we pack our goods in neutral white boxes and brown cartons with pallets.
Can bring to the north bay/ huntsville. Comixology thousands of digital comics. 2017 dodge durango r/t rwd billet metallic clear coat. Find fuse box dodge in canada | visit kijiji classifieds to buy, sell, or trade almost anything! Certain ignition boxes lengthen the duration the spark burns, resulting in more power and efficiency. › see all products in tools & equipment. Need to find fuse box location ro check dash ligher fuse is good or if it needs to be replace since back works but need to use rhe front one start a new dodge durango question. Please comment below if you have any questions and thank you for watching! Fuse box diagram dodge durango 2. About 0% of these are car bumpers. 2000 dodge durango fuse box. Research the 2004 dodge durango at cars.com and find specs, pricing, mpg, safety data, photos, videos, reviews and local inventory. But before that my dad owned a 2005 with the same engine.
Looking for a used durango in your area? 2004 dodge durango under hood fuse box diagram. I currently own a 2004 durango with a 4.7 magnum. 2000 dodge durango fuse box. 2017 dodge durango r/t rwd billet metallic clear coat.
2004 Dodge Durango Limited Need Inside Fuse Panel Diagram from ww2.justanswer.com I currently own a 2004 durango with a 4.7 magnum. Neither let us down, and i plan on keeping my big guy until it reaches its limit. › see all products in tools & equipment. I recently purchased a 2004 durango and the rear wiper doesn't work. Some components may have multiple. Here you will find fuse box diagrams of dodge durango 2004, 2005, 2006, 2007, 2008, 2009, get information about the location of the fuse panels inside the car, and learn about the assignment of each fuse interior fuse box. 2004 dodge durango under dash fuse box diagram. 2017 dodge durango r/t rwd billet metallic clear coat.
Though it is larger than most midsize suvs, such as the jeep grand cherokee, it fell.
The fuse box is located on the left side of the dash. By driving my 2004 dodge durango in awd this is the correct way to drive it right? Need to open the door to see a access panel there. I just got an electronic copy of the 2004 durango service manual. One under the hood & one inside the vehicle. For the dodge durango second generation 2003, 2004, 2005, 2006, 2007, 2008, 2009 model year. I recently purchased a 2004 durango and the rear wiper doesn't work. Get a good fuse tester. 2004 dodge durango under hood fuse box diagram. It is located in the left kick panel. Looking for a used durango in your area? Need to find fuse box location ro check dash ligher fuse is good or if it needs to be replace since back works but need to use rhe front one start a new dodge durango question. 2017 dodge durango r/t rwd billet metallic clear coat.