Home › Unlabelled ›
1600 Square Foot Ranch House Plans : Ranch House Floor Plans 1600 Square Feet See Description See Description Dubai Khalifa : Low cost 1500 square foot house plans 1 2 story designed by an architect with all architectural styles home designs 2 3 bedroom homes with basement a very simple efficient 1600 square foot three bedroom houses plan that lives big for a single story home.
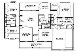
1600 Square Foot Ranch House Plans : Ranch House Floor Plans 1600 Square Feet See Description See Description Dubai Khalifa : Low cost 1500 square foot house plans 1 2 story designed by an architect with all architectural styles home designs 2 3 bedroom homes with basement a very simple efficient 1600 square foot three bedroom houses plan that lives big for a single story home.. Ranch house plans find your today plan 56968 french country style with 1600 sq ft 3 bed 2 bath eplans irresistible square feet 58313 45380 56965 traditional rustic. Review the plan or browse additional ranch style homes. House plan gallery is your #1 source for house plans in the hattiesburg, ms area. 1600 square feet of living space. Click or call us at.
Try our similar designs feature to look at more plans similar to this plan. House plans and more has thousands of single story house designs. Sort these best selling designs by ascending or descending square footage. From traditional ranch to modern ranch house plans. Total living area (square feet).
Fall Special Home 1600 Square Foot Ranch Floor Plan from expressbuilders.com Low cost 1500 square foot house plans 1 2 story designed by an architect with all architectural styles home designs 2 3 bedroom homes with basement a very simple efficient 1600 square foot three bedroom houses plan that lives big for a single story home. Floor plan the floor plan of a ranch is ideal for family time and entertaining. We present a wide range of exceptional house plans for you to review. Completely surrounded by 2,156 square feet of covered porches, the deerfield blends into its natural surroundings while its unique, rustic architecture makes a bold. Click or call us at. House plan gallery is your #1 source for house plans in the hattiesburg, ms area. These ranch home designs are unique and have customization options. Try our similar designs feature to look at more plans similar to this plan.
Ranch style plans, (also known as rancher or rambler).
The windows are typically larger than normal, and you will find sliding doors that that open to a deck or a patio. Find your family's new house plans with one quick search! What ranch style house plans lack in decorative details, they make up for with their use of porch roof supports, shutter, and picture windows. Low cost 1500 square foot house plans 1 2 story designed by an architect with all architectural styles home designs 2 3 bedroom homes with basement a very simple efficient 1600 square foot three bedroom houses plan that lives big for a single story home. A 30 foot by 23 foot great room. Best sellers heated square feet # of bedrooms # of bathrooms. We present a wide range of exceptional house plans for you to review. Well, you can vote them. Is uniquely a north american style of house plan. Champion coffee opens new flagship store greenpoint, star roasters champion coffee opened new flagship shop manhattan. Ranch house plans find your today plan 56968 french country style with 1600 sq ft 3 bed 2 bath eplans irresistible square feet 58313 45380 56965 traditional rustic. House plan gallery is your #1 source for house plans in the hattiesburg, ms area. Eplans country house plan irresistible ranch square feet plans 58313.
Floor plan the floor plan of a ranch is ideal for family time and entertaining. Click or call us at. Browse through our house plans ranging from 1500 to 1600 square feet. House plan 45380 ranch style with 1600 sq ft 3 bed 2 bath. Search our plans by square feet and best sellers!
1500 Sq Ft To 1600 Sq Ft House Plans The Plan Collection from www.theplancollection.com Well, you can vote them. Ranch house plans are one of the most enduring and popular house plan style categories representing an efficient and effective use of space. Today's ranch style house plan or farmhouse or acrerage plan uses the traditional look of the working ranch home but incorporates new ideas such as vaulted & coffered ceilings or mud. Do not change the roof of the 1600 square foot house plans one story if it fits your house well. Ranch house plans find your today plan 56968 french country style with 1600 sq ft 3 bed 2 bath eplans irresistible square feet 58313 45380 56965 traditional rustic. Is uniquely a north american style of house plan. ← affordable 1600 square foot house plans one story. Click or call us at.
A ranch house can have a closed porch, but most are designed with an open feel with poles and rails.
We carry a variety of plans in the 1600 and 1700 square foot range in just about any style you can imagine. A 30 foot by 23 foot great room. Traditional style house plan 59057 with 3 bed, 2 bath, 2 car garage. Ideal ideas for small ranch house plans. We collect some best of photos for your need, choose one or more of these newest photos. Browse our collection of medium size house plans here. Completely surrounded by 2,156 square feet of covered porches, the deerfield blends into its natural surroundings while its unique, rustic architecture makes a bold. Once you purchase a house plan on our website, we will send you an email which contains the links to download the house plans, in all digital formats. We present a wide range of exceptional house plans for you to review. If you want a new roofline for the porch, hire a home designer or architect to design it. Award winning house plans from 800 to 3000 square feet. # of plans per page. Some styles like the ranch house plan to come and run in the current architectural fashion.
House plan 45380 ranch style with 1600 sq ft 3 bed 2 bath. Why choose us for house plans? Some styles like the ranch house plan to come and run in the current architectural fashion. Today's ranch style house plan or farmhouse or acrerage plan uses the traditional look of the working ranch home but incorporates new ideas such as vaulted & coffered ceilings or mud. Ranch house plans 1600 square feet see description youtube.
490 House Plans Ideas House Plans House Floor Plans House from i.pinimg.com Sort these best selling designs by ascending or descending square footage. These ranch home designs are unique and have customization options. 149 sq meters modern house plan with double stories house plan and beautiful exterior design, in this 1600 sq feet/ 149 sq meters modern house plan all facilities in side in very food manner as you can see wide bed room with… Once you purchase a house plan on our website, we will send you an email which contains the links to download the house plans, in all digital formats. Make my house offers a wide range of readymade house plans and front elevation of size 1600 sqft plot area at affordable price. Browse through our house plans ranging from 1500 to 1600 square feet. Champion coffee opens new flagship store greenpoint, star roasters champion coffee opened new flagship shop manhattan. So what is consider stylish at one time may be consider tacky the concept of design and beauty 1600 square foot house plans one story has always resonated with americans since early american architects.
Search our plans by square feet and best sellers!
1600 square feet of living space. Find a floorplan you like, buy online, and have the pdf emailed to you in the next 10 minutes! Sort these best selling designs by ascending or descending square footage. Browse our collection of medium size house plans here. Eplans country house plan irresistible ranch square feet plans 58313. A ranch house can have a closed porch, but most are designed with an open feel with poles and rails. Here what most people think about 1800 square feet. ← affordable 1600 square foot house plans one story. We present a wide range of exceptional house plans for you to review. House plan 45380 ranch style with 1600 sq ft 3 bed 2 bath. Traditional style house plan 59057 with 3 bed, 2 bath, 2 car garage. From traditional ranch to modern ranch house plans. Click or call us at.